Om Lägenheterna
På varje våningsplan finns tre lägenheter: en på norrgaveln, en mot väster och en mot söder. Lägenheterna mot norr och söder har fönster i tre väderstreck och två balkonger. Lägenheterna mot väster har en balkong med kvällssol. De flesta balkonger är inglasade.
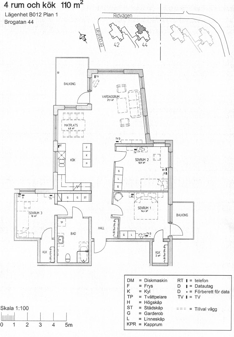
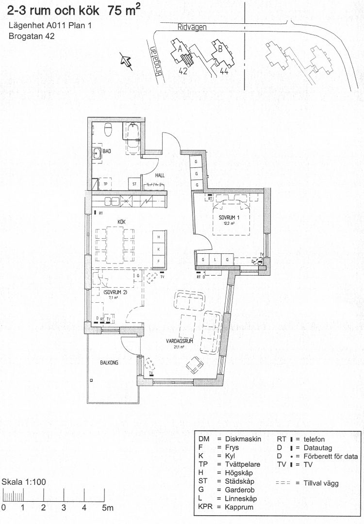
Lägenheterna är inte exakt likadana och det som kan skilja är planlösningen mellan köks- och vardagsrumsdel. Några i norr- och söderlägenheterna har satt upp en extra vägg för att få en 4:a i stället för en 3:a.
Alla har inte valt likadant kakel och klinker i badrummen och det kan också skilja i valet av kakel, köksinredning och vitvaror i köken. I standardutbudet när husen byggdes ingick ekparkett på alla golv utom i klädkammaren där det är plastmatta. Takhöjden i lägenheterna är 2,6 m.
På nedanstående ritningar ses exempel på planlösning i lägenheterna. Det finns 14 lägenheter i vardera väderstreck samt en 2:a på bottenvåningen i hus C och en 4:a på bottenvåningen i hus B. Ritning på 2:an visas inte här. På ritningarna ser du den totala bostadsytan samt kvadratmeteryta/rum.





